Chile, Cardenal Caro, Región de O'Higgins, Chile, Pichilemu
Rentabilidad estimada
Riesgo
Plazo de
Fracciones a
Han comprado:
Las rentabilidades, plazos y estimaciones están calculadas en base a la fecha de finalización de la campaña:

Gestor del proyecto
5 años de experiencia
¿Te interesa adquirir este activo?
Mostrar interésCargando...
FURO presenta Punta de Lobos, un desarrollo inmobiliario sustentable ubicado en la icónica localidad de Punta de Lobos, Pichilemu, en la Región de O’Higgins. Reconocida como la capital mundial del surf, esta zona es famosa por sus olas gigantes y perfectas y por los campeonatos internacionales, atrayendo año a año a surfistas y viajeros de todo el mundo. Un destino único, que combina deporte, naturaleza y estilo de vida consciente.
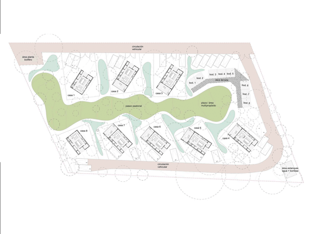
El proyecto contempla un condominio de 8 viviendas, emplazadas en un terreno urbano de 5.000 m². Las casas han sido diseñadas bajo criterios de eficiencia energética, autonomía operativa (Off-Grid) y construcción industrializada en madera, lo que permite reducir el impacto ambiental, mejorar los tiempos de ejecución y elevar la calidad constructiva.
Además, el proyecto incorpora una segunda edificación compuesta por 8 módulos independientes de bodegas/oficinas, concebidas como espacios de apoyo al estilo de vida activo y remoto de sus futuros residentes. Cada módulo ha sido diseñado para funcionar como home office y área de almacenaje para equipos deportivos como tablas de surf, bicicletas y equipos outdoor.
Punta de Lobos está orientado a un público que valora el contacto con la naturaleza, la vida en comunidad y la flexibilidad laboral. Familias jóvenes, profesionales nómadas digitales y deportistas encontrarán aquí un espacio funcional, armónico y conectado con el entorno, ideal tanto para primera como segunda vivienda.
Este desarrollo propone una nueva manera de habitar el litoral central: consciente, sustentable y en sintonía con el paisaje y el mar.
La propuesta combina diseño de autor, construcción industrializada y un modelo financiero eficiente:
Al participar como socio en el desarrollo:
FURO es una desarrolladora inmobiliaria con foco en diseño sustentable, construcción en madera y eficiencia operativa. Entre su equipo se encuentran:
FURO se especializa en diseño y construcción en madera laminada industrializada, priorizando:
Amplio portafolio colaborativo con arquitectos y desarrolladores, orientado a impacto y calidad.
El equipo tiene trayectoria en proyectos residenciales, hoteleros y comunitarios, como Punta Lobos, Casa Cerro Castillo, cafés y viviendas sociales.
| 🤖 Variable Usada: | Precio de Venta: 60,7 UF/m² |
| 💰 Rentabilidad: | 🔝TIR = UF + 24,96% |
| 🤖 Variable Usada: | Precio de Venta: 58,9 UF/m² |
| 💰 Rentabilidad: | 🔝TIR = UF + 21,5% |
| 🤖 Variable Usada: | Precio de Venta: 57,7 UF/m² |
| 💰 Rentabilidad: | 🔝TIR = UF + 17,31% |
¿Es necesario esperar hasta el final? 🤔 ¡No es necesario! Puedes poner a la venta tus fracciones cuando quieras y obtener tu plusvalía hasta ese momento.
T/C = (definir si corresponde tipo de cambio UF/CLP u otra variable)
Riesgo contenido, dado que:
Riesgos potenciales:
Contingencias constructivas o climáticas.
Mitigaciones: